Town House
Mtarfa

Mtarfa Elevated terraced houses

Mtarfa
Price
€ 600,0000

Properties Details

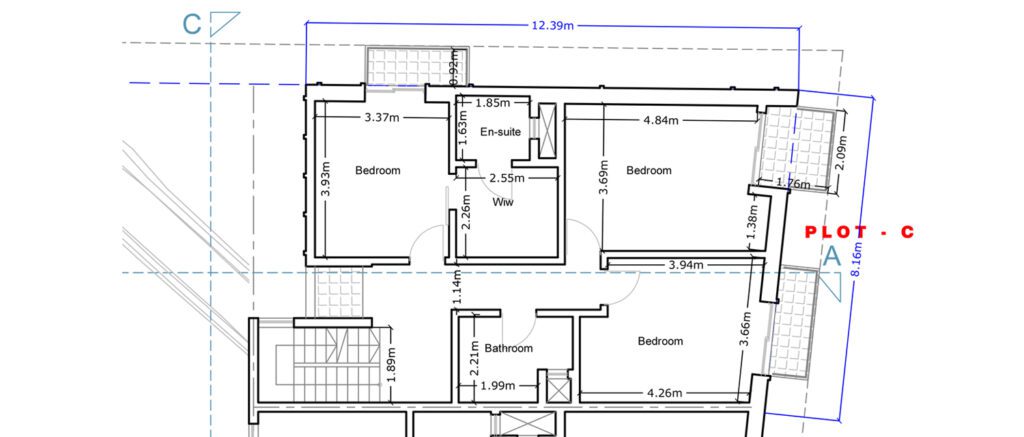
bed
3rooms
Bathroom
3rooms
Area
200sq ft
Type
Town House

Amenities

Parking

description

Mtarfa Elevated terraced houses being sold in shell form

Total Area: 200 sq meters

Mtarfa is a small town in the Northern Region of Malta, with a population of 2,572 people as of March 2014. It was considered to be a suburb of Rabat until 2000, when it became a separate local council.

What's Nearby

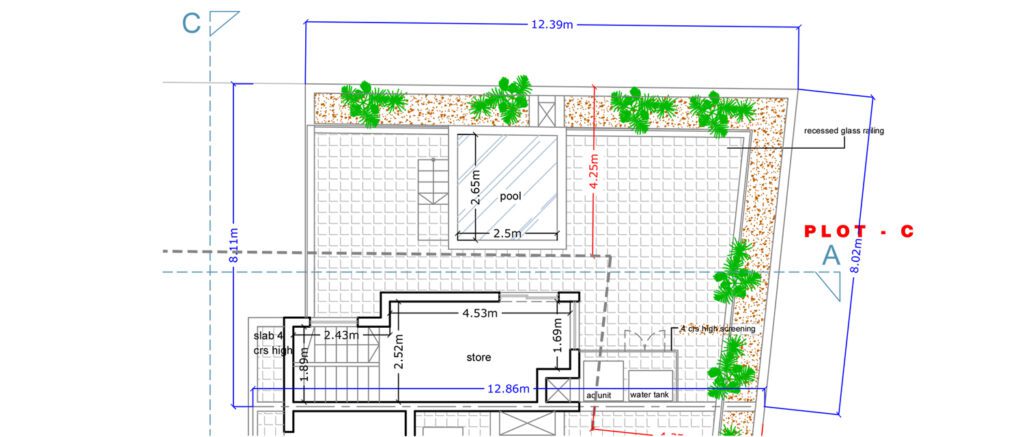
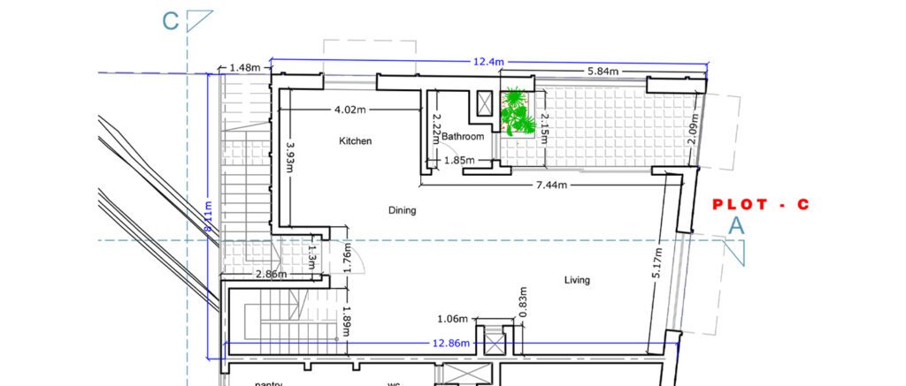
Floor Plan

Recent Properties

Apartment
    3
    Beds
    2
    Bath
    Garage
    No data
    Sqft
    €395,000
    St. Paul's Bay
    Compare Listings